自力式调节阀

自力式氮封阀
产品简介
News Center
新闻中心 ZZDQ自力式氮封阀主要用于储罐顶部氮气压力恒定控制,以保护罐内物料不被氮化及储罐安全。氮封阀由ZZDQ快速泄放阀及ZZV自力式微压调节阀两大部分组成。快速泄放阀由压力控制器及ZMQ-16K型单座切断阀组成。
储罐内压力升高至设定压力时,快速泄放阀迅速开启,将罐内多余压力泄放。微压调节阀在储罐内压力降低时,开启阀门,向罐内充注氮气。因微压调节阀必须使用在压力为0.1Mpa压力以下,现场压力较高,必须安装ZZYP型压力调节阀将压力调节阀将压力降低至0.1Mpa以下才可使用。公称压力0.1Mpa,压力可按分段设定,从0.5Kpa 至66 Kpa以下,介质温度温度≤80℃。
(1)无需外加能源,能在无电、无气的场合工作,既方便又节约能源,降低成本。
(2)氮封装置供氮,泄氮压力设定方便,可在连续经营的条件下进行。
(3)压力检测膜片有效面积大,设定弹簧刚度小、动作灵敏、装置工作平衡。
(4)采用无填料设计,阀杆所受磨擦力小、反应迅速、控制精度高。
(5)供氮装置采用指挥器操作,减压比可达100:1,减压效果好、控制精度高。
(6)为确保储罐的安全,需在罐顶设置呼吸阀。
(7)呼吸阀公起安全作用,避免了常规氮封装置中启闭频繁易损坏的缺陷。
| 公称通径(mm) | 20 | 25 | 40 | 50 | 80 | 100 | 150 | |||||
|---|---|---|---|---|---|---|---|---|---|---|---|---|
| 阀座直径(mm) | 6 | 15 | 20 | 25 | 32 | 40 | 50 | 65 | 80 | 100 | 125 | 150 |
| 额定流量系数Kv | 3.2 | 5 | 8 | 10 | 20 | 32 | 50 | 80 | 100 | 160 | 250 | 400 |
| 压力调节范围 | 0.5~70 20~120 60~400 300~700 500~1000 KPa | |||||||||||
| 公称压力PN | 1.0、1.6 MPa | |||||||||||
| 被调介质温度 | 80、200 ℃ | |||||||||||
| 流量特性 | 快开型 | |||||||||||
| 调节精度 | ≤5% | |||||||||||
| 允许压降(MPa) | 1.6 | 1.6 | 1.1 | 0.6 | 0.4 | |||||||
| 薄膜有效面积(C㎡) | 200 | 280 | 400 | |||||||||
| 允许泄漏量 | 符合ANSIB16.104—1976 IV级 | |||||||||||
| 阀盖形式 | 标准型 (整体式) | |||||||||||
| 压盖型式 | 螺栓压紧式 | |||||||||||
| 密封填料 | V型聚四氟乙烯填料、含浸聚四氟乙烯石棉填料、石棉纺织填料、石墨填料 | |||||||||||
| 阀芯形式 | 单座型阀芯 | |||||||||||
| 流量特性 | 直线性 | |||||||||||

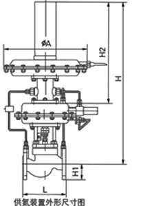
公称通径DN(mm) | 25 | 32 | 40 | 50 | 65 | 80 | 100 |
L | 160 | 180 | 200 | 230 | 290 | 310 | 350 |
A | 308 | 308 | 308 | 308 | 394 | 394 | 394 |
H2 | 415 | 415 | 415 | 115 | 415 | 415 | 415 |
H1 | 60 | 75 | 80 | 85 | 95 | 105 | 120 |
H | 720 | 730 | 730 | 750 | 790 | 840 | 890 |
重量(kg) | 32 | 35 | 40 | 50 | 90 | 115 | 280 |
在线留言