气动球阀

BQ641F气动保温球阀
产品简介
News Center
新闻中心产品型号:BQ641F
公称通径:DN15-DN150
公称压力:1.6MPa-4.0MPa
适用温度:-20℃-300℃
适用介质:水、油、气等
阀体材质:碳钢、不锈钢
设计制造 | GB/T 12237-1989、API 608、API 6D、JPI 7S-48、BS5351 |
结构长度 | GB/T 12221-1989、ANSI B16.10;JIS B2002 |
连接法兰 | JB/T74~90(JB74~90)、GB9112~9131、HGJ44-76、SH3406;ANSI B16.5;JIS B2212~2214 |
压力试验 | JB/T 9092-1999、API 598 |
公称通径DN(mm) | 15 | 20 | 25 | 32 | 40 | 50 | 65 | 80 | 100 | 125 | 150 | 200 |
额定流量系数KV | 21 | 38 | 72 | 112 | 170 | 273 | 384 | 512 | 940 | 1452 | 2222 | 3589 |
公称压力(MPa) | PN1.6、2.5、4.0、6.4 MPa;ANSI 150、300LB | |||||||||||
阀体形式 | 法兰式:分体式铸造球阀;对夹式:整体式铸造阀体 | |||||||||||
连接形式 | 法兰式、对夹式 | |||||||||||
阀芯形式 | "O"型球形阀芯 | |||||||||||
泄露量Q | 按GB/T4213-92,小于额定KV0.01% (软密封:零泄露) | |||||||||||
可调范围 | 250:1 | 350:1 | ||||||||||
配置执行机构 | 可配AT、AW系列单双作用气动执行器 | |||||||||||
控制方式 | 开关两位控制、4-20mA模拟量控制 | |||||||||||
零件名称 | 材料名称 | |||
阀体 | WCB | 304(CF8) | 316(CF8M) | 316L(CF3M) |
球体 | 2Cr13+氮化处理 | 304 | 316 | 316L |
阀杆 | 2Cr13 | 304 | 316 | 316L |
密封圈 | 聚四氟乙烯(PTFE)、增强聚四氟乙烯(PPL)、对位聚苯、柔性石墨 | |||
适用介质 | 水、气体、蒸汽、油品等 | 硝酸等腐蚀性介质 | 醋酸等腐蚀介质 | 尿素等腐蚀性介质 |

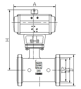
| DN | d | L | L1 | L2 | L3 | H | H1 | D | D1 | D2 | f | G | N-Md |
| 15 | 15 | 32 | 141/159 | 71/83 | 150 | 177/208 | 15 | 95 | 65 | 46 | 2 | 1/2" | 4-M12 |
| 20 | 20 | 38.5 | 141/159 | 71/83 | 160 | 182/213 | 20 | 105 | 75 | 56 | 2 | 1/2" | 4-M12 |
| 25 | 25 | 45 | 141/211 | 71/95 | 190 | 187/230 | 20 | 115 | 85 | 65 | 2 | 1/2" | 4-M12 |
| 32 | 29 | 55 | 159/211 | 95/107 | 230 | 231/261 | 30 | 150 | 110 | 84 | 3 | 1/2" | 4-M16 |
| 40 | 38 | 62 | 211/248 | 95/107 | 230 | 231/261 | 30 | 150 | 110 | 84 | 3 | 1/2" | 4-M16 |
| 50 | 46 | 72 | 248/269 | 107/123 | 250 | 258/293 | 30 | 165 | 125 | 99 | 3 | 1/2" | 4-M16 |
| 65 | 62 | 95 | 248/315 | 107/141 | 270 | 273/298 | 45 | 185 | 145 | 118 | 3 | 1/2" | 4-M16 |
| 80 | 76 | 120 | 269/345 | 123/152 | 300 | 303/325 | 50 | 200 | 160 | 132 | 3 | 1/2" | 8-M16 |
| 100 | 92 | 145 | 345/409 | 152/172 | 340 | 333/390 | 70 | 220 | 180 | 156 | 3 | 1" | 8-M16 |
| 125 | 110 | 200 | 409/438 | 172/187 | 360 | 380/468 | 80 | 250 | 210 | 184 | 3 | 1" | 8-M16 |
| 150 | 145 | 225 | 438/550 | 187/215 | 420 | 432/520 | 95 | 285 | 240 | 211 | 3 | 1" | 4-M20 |
在线留言