气动球阀

气动放料球阀
产品简介
News Center
新闻中心产品型号:FQ641F
公称通径:DN15-DN250
公称压力:1.0MPa-6.4MPa
适用温度:-10℃-180℃
适用介质:水、油、气、酸碱物等
阀体材质:铸钢、不锈钢
1、采用氟塑料衬里层的球阀,具有极高的化学稳定性,可以适用于任何强腐蚀性化学介质;
2、采用全通径、浮动球结构,阀门可在整个压力范围内进行无泄漏关闭,便于管路系统的通球扫线和管路维护;
3、启闭件球体与阀杆铸(锻)为一体,减少了由于压力变化引起阀杆冲击承压件内的可能性;
4、结构紧凑合理,阀体内腔空间小,减小了介质滞留,另外,模压工艺,使密封面致密度良好,加之人字环形PTFE填料组合,使阀门泄漏小。
设计标准 | GB/T 12237-1989 |
结构长度 | Q/OLF002-03 |
连接端标准 | GB/T 7307、GB/T 79、ISO 2852 |
试验标准 | B/T 9092-1999 |

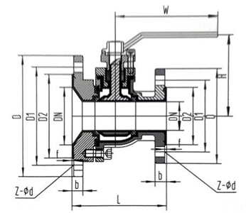
公称通径DN | 主要外形尺寸和连接尺寸mm | |||||||||
D | D1 | D2 | z-φd | n-φd | L | L0 | H | b1 | b2 | |
25 | 235 | 85 | 125 | 4-φ14 | 4-φ14 | 120 | 220 | 115 | 15 | 22 |
40 | 235 | 110 | 160 | 4-φ18 | 4-φ18 | 135 | 250 | 130 | 19 | 22 |
50 | 230 | 125 | 190 | 4-φ18 | 8-φ14 | 160 | 250 | 125 | 14 | 20 |
80 | 245 | 160 | 210 | 4-φ18 | 8-φ14 | 200 | 400 | 184 | 15 | 22 |
在线留言