手动球阀

Q42F-Y型三通球阀
产品简介
News Center
新闻中心产品型号:Q42H,Q42F
公称通径:DN50~DN300
公称压力:1.6Mpa~6.4Mpa
适用温度:-29~180ºC~550ºC
阀体材质:铸钢、不锈钢
适用介质:水、油、气体、液体、钢珠、胶球
结构形式:球形
连接方式:法兰
驱动方式:手动、电动、气动
制造标准:国标GB、德国DIN、美国API、ANSI
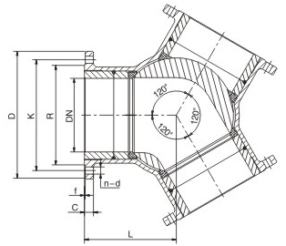
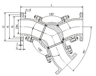
Q42H,Q42F Y型三通球阀 (120度角,135度角)三通Y型球阀有相互成120°、135°二种阀体结构形式,Y型三通球阀流道平坦、流体阻力小,流通能力强。切换时介质无滞留,不会造成二次污染。可配电动执行器、气动执行器实现自动化控制。
公称通径:DN50-DN250
阀体材质:WCB、304、316
连接方式:法兰式
压力等级:PN1.6-4.0MPa
结构形式:Y型120度、Y型135度
阀座密封:PTFE:-30℃~180℃
PPL :-30℃~250℃
硬密封:-30℃~450℃ 硬质合金:表面喷焊、氮化钨
阀芯材质:304、316、316;硬密封球芯表面采用喷焊、氮化钨
阀杆材质:304
适用介质:粉体、水液、气体等
1、流道形成120度切换,流道平坦、阻力小、流通能力强
2、介质无滞留
3、软密封最高温度250度
4、硬密封最高425度
5、泄漏量:零泄漏
6、回差:±2.5%
设计制造:GB/T12238-2008
连接标准:JB/T 79.1-1994
结构长度:GB/T12221-2005
压力试验:GB/T13927-2008
双作用:通气开、通气关,气源故障保持当前位置
单作用气开式: 通气开、断气关,气源故障关闭
单作用气关式: 通气关、断气开,气源故障打开
可选附件: 换向电磁阀、限位开关、空气过滤减压阀、电气定位器、手轮机构、保位阀
电气部分可以选防爆
开关型:反馈信号:无源触点信号\4-20mA\电阻信号
调节型:输入信号4-20mA\0-10V\1-5V;反馈信号:4-20mA\0-10V\1-5V
电压: AC220V\380V\110V\24V、DC12V\24V等;特殊电压可定制
防爆等级:可选防爆型EXdIIBT4


| DN | L | D | K | R | C | f | n-d |
| 50 | 110 | 160/165 | 125 | 100 | 20 | 3 | 4-18 |
| 65 | 130 | 180/185 | 145 | 120 | 20 | 3 | 4-18 |
| 80 | 150 | 195/200 | 160 | 135 | 20 | 3 | 8-18 |
| 100 | 170 | 215/220 | 180 | 155 | 22 | 3 | 8-18 |
| 125 | 190 | 245/250 | 210 | 185 | 22 | 3 | 8-18 |
| 150 | 210 | 280/285 | 240 | 210 | 24 | 3 | 8-23 |
| 200 | 245 | 335/340 | 295 | 265 | 24 | 3 | 12-23 |
| 250 | 290 | 405 | 355 | 320 | 30 | 3 | 12-25 |

| DN | L | D | K | R | C | f | n-d |
| 50 | 340 | 160/165 | 125 | 100 | 20 | 3 | 4-18 |
| 65 | 400 | 180/185 | 145 | 120 | 20 | 3 | 4-18 |
| 80 | 410 | 195/200 | 160 | 135 | 20 | 3 | 8-18 |
| 100 | 460 | 215/220 | 180 | 155 | 22 | 3 | 8-18 |
| 125 | 560 | 245/250 | 210 | 185 | 22 | 3 | 8-18 |
| 150 | 660 | 280/285 | 240 | 210 | 24 | 3 | 8-23 |
| 200 | 800 | 335/340 | 295 | 265 | 24 | 3 | 12-23 |
| 250 | 1030 | 405 | 355 | 320 | 30 | 3 | 12-25 |
| 300 | 1140 | 460 | 410 | 375 | 30 | 4 | 12-25 |
在线留言